Проекты
Квартиры
Условия покупки
Коммерческая недвижимость
О компании
Новости
Работа в Термодоме
Партнерам
Контакты
Пенза
Пенза
Саранск
+7 (8412) 28-28-20
+7 (8412) 28-28-20
Главная
Проекты
ЖК «Новелла», этап 4, стр. 8
ЖК «Новелла», этап 4, стр. 8
Срок ввода:
4 квартал 2025 года
Общие технические характеристики
Количество квартир
104
Общей площадью
8 009 кв.м
Однокомнатные
26
Двухкомнатные
26
Трехкомнатные
52
Коммерческие
4
Панорамное остекление
нет
Технический этаж
есть
Цокольный этаж
есть
Коммерческие помещения
есть
Вся юридическая информация о данном объекте размещена в разделе
Документы
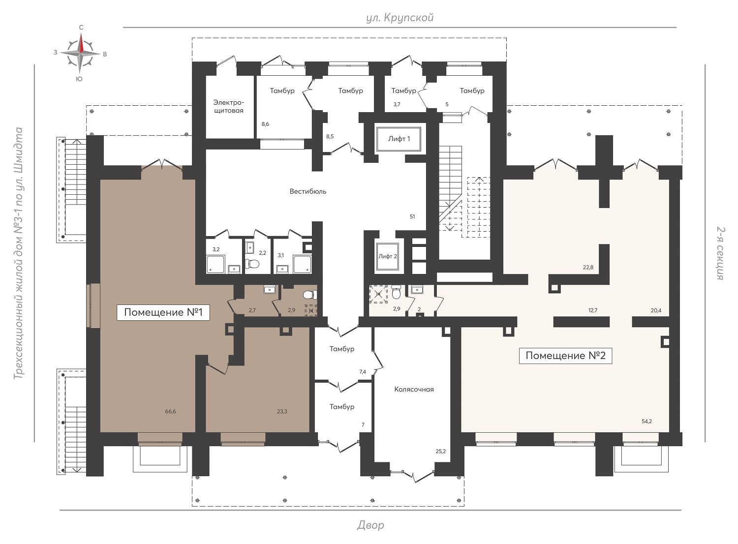
План этажа
Секция
1
2
Этаж
1
2
3
4
5
6
7
8
9
10
11
12
13
14
+
-
Previous
Next
Квартиры
Показать фильтры
Свернуть фильтр
Комнаты
С
1
2
3
4
Площадь
от
м2
до
м2
Стоимость
от
р
до
р
ЖК
Жилой комплекс «8 Марта»
Жилой квартал «Радужные дворы»
Жилой комплекс «Ньютон»
Жилой комплекс «Новелла»
Жилой комплекс «Созвездие» (1-я очередь)
Жилой квартал «Лайм Парк»
Жилой комплекс «Balance» (ЖК «Баланс»)
Жилой комплекс «Созвездие» (3-я очередь)
Жилой комплекс «Новин в Нижнем Ломове»
11-я очередь строительства
Город-курорт «Юга»
Загородная резиденция «Порт-А-Якс»
Дом
Любой
Лунная, 1"А"
Радужная, 14
Радужная, 12
Радужная, 10
Олимпийская, 8
Светлая, 11
Олимпийская, 4
Изумрудная, 3
Изумрудная, 5
Изумрудная, 9
Светлая, 12
Радужная, 6
Бульвар Прибрежный, 3
Изумрудная, 10
Фонтанная, 9
Бульвар Прибрежный, 1
Фонтанная, 7
Изумрудная, 7
Олимпийская, 10
Изумрудная, 1
Светлая, 10
Фонтанная, 13
Фонтанная, 11
Светлая, 13
Олимпийская, 6
Светлая, 15
Фонтанная, 14
Светлая, 9а
Олимпийская, 14
Светлая, 14
ЖК 8 марта (1 этап)
Ахунская, 25 (Заречный)
Светлая, 3
ЖК 8 марта (2 этап)
Бульвар Прибрежный, 5 «Атлас»
ул. Шмидта, 24
Бульвар Прибрежный, 5 «Мира»
ул. Шмидта, 24, к. 1
Фонтанная, 10
ЖК Жемчужный
ул. Шмидта, 3
ул. Шмидта, 3, к.1
ЖК «Парк Рояль»
Алая, 15
ЖД «Майя» - Изумрудная, 4
ул. Шмидта, 7
ул. Шмидта, 7, к.1
Светлая, 17
2 очередь (2 этап) – «Исида»
2 очередь (3 этап) – «Меридиана»
ЖК 8 марта (3 этап)
ЖК Ньютон
ул. Крупская, 8
Жилой дом №77
ЖК «Новелла», этап 4, стр. 7
Balance 1 (Баланс 1)
Balance 2 (Баланс 2)
1 очередь (3 этап) – «Астерион»
3 очередь (1 этап) - «Лира»
ЖК «Новелла», этап 4, стр. 8
Жилой дом №75
Жилой дом №74
3 очередь (3 этап) - «Феникс»
Земельные участки (Лайм-парк)
1 очередь (4 этап) – «Авиор»
ЖК «Новин в Нижнем Ломове» 1-1
ЖК «Новин в Нижнем Ломове» 1-2
ТЦ на Алой
ТЦ у Метро
ЖК 8 марта (4 этап)
ЖК 8 марта (5 этап)
Жилой дом №7-11
3 очередь (2 этап) - «Пегас»
ЖК 8 марта 2 (1 этап)
Этаж
Срок cдачи
Любой
2028
2027
2026
2025
2024
2023
2022
2021
2020
2019
2018
2017
2016
2015
2014
Сортировать:
Сначала дешевые
Сначала дорогие
Расширенный фильтр
Сбросить фильтр
Применить фильтр
Выберите жилой комплекс
Очистить
Жилой комплекс «8 Марта»
Жилой квартал «Радужные дворы»
Жилой комплекс «Ньютон»
Жилой комплекс «Новелла»
Жилой комплекс «Созвездие» (1-я очередь)
Жилой квартал «Лайм Парк»
Жилой комплекс «Balance» (ЖК «Баланс»)
Жилой комплекс «Созвездие» (3-я очередь)
Жилой комплекс «Новин в Нижнем Ломове»
11-я очередь строительства
Город-курорт «Юга»
Загородная резиденция «Порт-А-Якс»
Выбрать
Выберите дом
Очистить
Лунная, 1"А"
Радужная, 14
Радужная, 12
Радужная, 10
Олимпийская, 8
Светлая, 11
Олимпийская, 4
Изумрудная, 3
Изумрудная, 5
Изумрудная, 9
Светлая, 12
Радужная, 6
Бульвар Прибрежный, 3
Изумрудная, 10
Фонтанная, 9
Бульвар Прибрежный, 1
Фонтанная, 7
Изумрудная, 7
Олимпийская, 10
Изумрудная, 1
Светлая, 10
Фонтанная, 13
Фонтанная, 11
Светлая, 13
Олимпийская, 6
Светлая, 15
Фонтанная, 14
Светлая, 9а
Олимпийская, 14
Светлая, 14
ЖК 8 марта (1 этап)
Ахунская, 25 (Заречный)
Светлая, 3
ЖК 8 марта (2 этап)
Бульвар Прибрежный, 5 «Атлас»
ул. Шмидта, 24
Бульвар Прибрежный, 5 «Мира»
ул. Шмидта, 24, к. 1
Фонтанная, 10
ЖК Жемчужный
ул. Шмидта, 3
ул. Шмидта, 3, к.1
ЖК «Парк Рояль»
Алая, 15
ЖД «Майя» - Изумрудная, 4
ул. Шмидта, 7
ул. Шмидта, 7, к.1
Светлая, 17
2 очередь (2 этап) – «Исида»
2 очередь (3 этап) – «Меридиана»
ЖК 8 марта (3 этап)
ЖК Ньютон
ул. Крупская, 8
Жилой дом №77
ЖК «Новелла», этап 4, стр. 7
Balance 1 (Баланс 1)
Balance 2 (Баланс 2)
1 очередь (3 этап) – «Астерион»
3 очередь (1 этап) - «Лира»
ЖК «Новелла», этап 4, стр. 8
Жилой дом №75
Жилой дом №74
3 очередь (3 этап) - «Феникс»
Земельные участки (Лайм-парк)
1 очередь (4 этап) – «Авиор»
ЖК «Новин в Нижнем Ломове» 1-1
ЖК «Новин в Нижнем Ломове» 1-2
ТЦ на Алой
ТЦ у Метро
ЖК 8 марта (4 этап)
ЖК 8 марта (5 этап)
Жилой дом №7-11
3 очередь (2 этап) - «Пегас»
ЖК 8 марта 2 (1 этап)
Выбрать
1-комнатная
2 558 500 р
Комнат: 1
Площадь: 30 м²
Этаж: 1
1-комнатная
2 558 500 р
Комнат: 1
Площадь: 30 м²
Этаж: 1
1-комнатная
2 558 500 р
Комнат: 1
Площадь: 30 м²
Этаж: 1
1-комнатная
2 558 500 р
Комнат: 1
Площадь: 30 м²
Этаж: 1
1-комнатная
2 830 500 р
Комнат: 1
Площадь: 33 м²
Этаж: 5
1-комнатная
2 830 500 р
Комнат: 1
Площадь: 33 м²
Этаж: 4
1-комнатная
2 830 500 р
Комнат: 1
Площадь: 33 м²
Этаж: 3
1-комнатная
2 830 500 р
Комнат: 1
Площадь: 33 м²
Этаж: 2
Посмотреть все квартиры
Оставьте заявку, и наш менеджер свяжется с вами
Отправляя заявку, вы соглашаетесь на
обработку персональных данных
Я согласен с правилами
политику конфиденциальности
Контакты
Напишите менеджеру в чате
+7 (8412) 28-28-20
Заказать звонок
Показать адреса
Адрес
Пн – Пт
Суббота
Воскресенье
Пенз. обл. с. Засечное ул. Радужная, 1
8:00 — 19:00
8:00 — 14:00
9:00 — 14:00
г. Пенза, ул. Московская, 107
9:00 — 18:00
Выходной
Выходной
Город-курорт «Юга» (рядом с въездом)
Выходной
Выходной
Выходной
Адрес
Вт-Сб
Воскресенье
Понедельник
р-н Нижний Ломов, с. Кривошеевка, ул. Гагарина
9:00 — 18:00
Выходной
Выходной
Проекты
Квартиры
Условия покупки
Коммерческая недвижимость
О компании
Новости
Работа в компании
Партнерам
Контакты
Оставить заявку на консультацию по ипотеке
Отправляя заявку, вы соглашаетесь на
обработку персональных данных
Я согласен с правилами
политики конфиденциальности
Я не робот
Оставьте заявку мы вам перезвоним
Отправляя заявку, вы соглашаетесь на
обработку персональных данных
Я согласен с правилами
политики конфиденциальности
Я не робот
Отправить резюме
Загрузите резюме
Формат doc,docx,pdf
Отправляя заявку, вы соглашаетесь на
обработку персональных данных
Я согласен с правилами
политику конфиденциальности
Я не робот